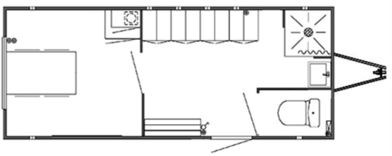
Mandskabsvogn 4 personer

Mandskabsvognen er perfekt for dig som skal bruge det hele i forbindelse med en ombygning eller andet større byggeprojekt.
Prisen for leje af mandskabsvognen (minimum 30 dage) er 110 kr pr. dag eksl. moms.
Pris for langtidsleje (>3 måneder) 95 kr. pr. dag eksl. moms

Kontakt os

Email

Vi svarer normalt inden for 24 timer

Telefon

Mandag - Fredag 08:00 - 16:30

© Copyright 2022 Pak-Ejendomme - All Rights Reserved

Created with Mobirise web templates